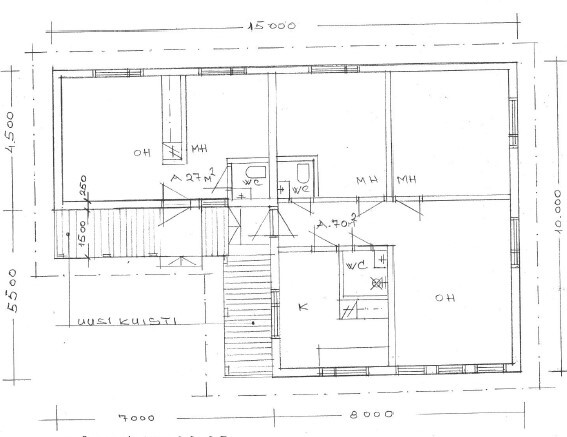
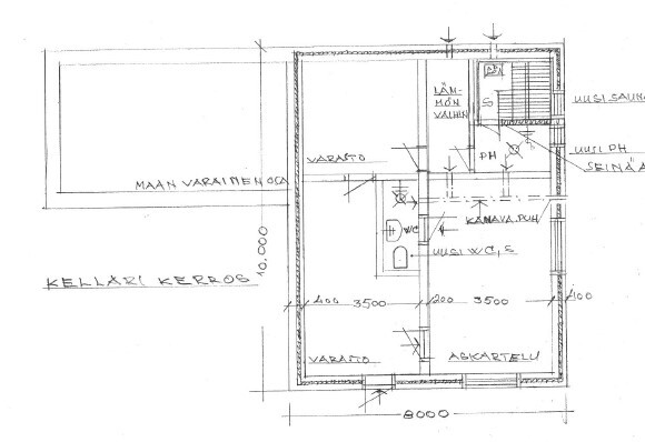
Omakotitalo 4h+2k+2wc+ph+kellari
Rauhankatu 15B, Hakalahti, Kokkola
Hinta
89 000 €
Koko
98 m² / 178 m²
Vuosi
1968
Myynnissä hyvin suositulta alueelta omakotitalo jossa vuokrattu kolmio (3h+k+wc+ph) sekä kaksio (2h+kph) sekä tilava kellari jossa saunatila sekä runsaasti varastotilaa. Talossa tehty iso peruskorjaus kun kaikki viemäri ja käyttövesiputket on uusittu. Kaukolämpö sekä oma tontti. Tervetuloa!
Kiinteistövälitys Nyman Oy LKV
0504331633
toimisto@nyman-lkv.fi
| Kohdenumero | 9831411 |
|---|---|
| Sijainti | Rauhankatu 15B, 67100 Kokkola |
| Huoneistoselitelmä | 4h+2k+2wc+ph+kellari |
| Huoneita | Ei luokiteltu |
| Tyyppi | Omakotitalo (kiinteistö) |
| Asuintilojen pinta-ala | 98 m² |
| Kerroksia | 1 |
| Vapautuminen | sopimuksen mukaan |
| Kohteen kunto | Hyvä |
| Energialuokka | Ei lain edellyttämää energiatodistusta |
| Rakennusvuosi | 1968 |
| Käyttöönottovuosi | 1968 |
| Velaton hinta | 89 000 € |
|---|---|
| Myyntihinta | 89 000 € |
| Velkaosuus | - |
| Vuokrattu | Kyllä |
| Lämmitysmuodot |
|
|---|---|
| Oma sauna | Kyllä |
| Sähköliittymä siirtyy | Kyllä |
| Antennijärjestelmä | Kaapeli-tv |
| Tehdyt remontit | Ikknat vaihdettu 1998. Kaukolämpö asennettu 2002. Kaikki viemäriputket ja käyttövesiputket uusittu 2007. Sähköja ja keskusia uusittu 2007. Katto maalattu 2010. |
| Liikenneyhteydet | |
|---|---|
| Tie perille | Kyllä |
| Viemäri |
|
|---|---|
| Vesihuolto |
|
| Katto | |
|---|---|
| Kate | Konesaumattu pelti |
| Rakennusmateriaalit | |
|---|---|
| Käytetyt rakennusmateriaalit |
|
| Keittiö | |
|---|---|
| Keittiön muu varustelu |
|
| Liesi |
|
| Jääkaappi ja pakastin |
|
| Keittiön lattia |
|
| Keittiön seinät |
|
| Kylpyhuone | |
|---|---|
| Kylpyhuoneen varustelu |
|
| Kylpyhuoneen lattia |
|
| Kylpyhuoneen seinät |
|
| Sauna | |
|---|---|
| Saunan lattia |
|
| Saunan seinät |
|
| Makuuhuone | |
|---|---|
| 3 | |
| Olohuone | |
|---|---|
| Olohuoneen lattia |
|
| Olohuoneen seinät |
|
| WC-tilat | |
|---|---|
| WC-tilojen lattia |
|
| Koko | 840 m² |
|---|---|
| Omistus | Oma |
| Kaavoitustilanne |
|
| Kiinteistötunnus | 272-18-2-3 |
| Nimi | Nyman Kristian |
|---|---|
| Sähköposti | toimisto@nyman-lkv.fi |
| Puhelin | 050-4331633 |
| Yrityksen nimi | Kiinteistövälitys Nyman LKV Oy |
| Toimiston nimi | Kiinteistövälitys Nyman LKV Oy |
| Yrityksen nimi | Kiinteistövälitys Nyman LKV Oy |
|---|---|
| Toimiston nimi | Kiinteistövälitys Nyman LKV Oy |
| Osoite | Kustaa Aadolfinkatu 3 liiketila 4., Kokkola |
| Toimiston puhelin | 050-4331633 |
| Toimiston sähköposti | toimisto@nyman-lkv.fi |
